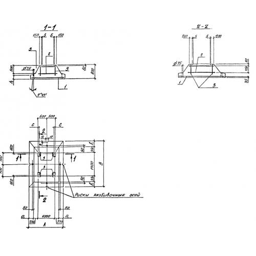
Ф2

Чертеж изделия:
Характеристики изделия:
ПараметрЗначение
длина2100 мм
ширина2700 мм
высота800 мм
вес6680 кг
серия0-221-84

Ф2 Плиты фундаментные по серии 0-221-84.