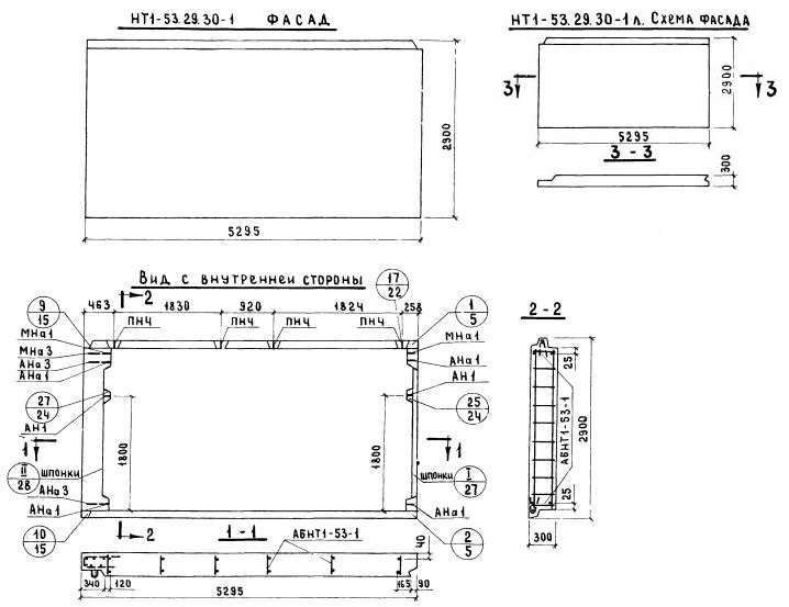
НТ1-53.29.30-1

Чертеж изделия:
Характеристики изделия:
ПараметрЗначение
Длина5295 мм
Ширина300 мм
Высота2900 мм
Масса6200 кг
Нормативный документСерия 1.132-1

НТ1-53.29.30-1   Наружная стеновая панель торцевая по Серии 1.132-1.