ЛП 240

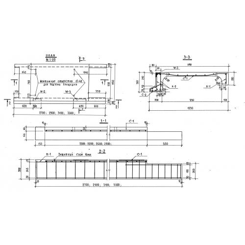
Чертеж изделия:
Характеристики изделия:
ПараметрЗначение
длина2700 мм
ширина1150 мм
высота300 мм
вес808 кг
серия1.150 КР-1

ЛП 240 Лестничные площадки по серии 1.150 КР-1.