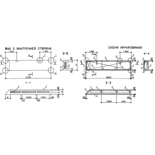
ПСТ 57.6.2.5 панели стеновые

Чертеж изделия:
Характеристики изделия:
ПараметрЗначение
длина5700 мм
ширина250 мм
высота585 мм
масса1260 кг
нормативный документСерия 1.232.1-7

ПСТ 57.6.2.5  Панели стеновые трехслойные (рядовые для внутренних углов зданий) Серия 1.232.1-7.