П 24.12.12
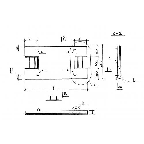
Характеристики изделия:
| Параметр | Значение |
|---|---|
| длина | 2390 мм |
| ширина | 1190 мм |
| высота | 120 мм |
| вес | 730 кг |
| серия | 1.243.1 КЛ-3 |
Цена:
Рассчитать стоимостьП 24.12.12 Панели перекрытий сплошные по серии 1.243.1 КЛ-3.
| Параметр | Значение |
|---|---|
| длина | 2390 мм |
| ширина | 1190 мм |
| высота | 120 мм |
| вес | 730 кг |
| серия | 1.243.1 КЛ-3 |
П 24.12.12 Панели перекрытий сплошные по серии 1.243.1 КЛ-3.
