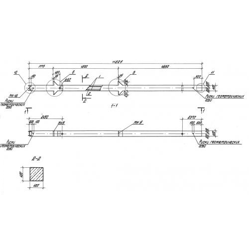
К 14 колонны
Характеристики изделия:
| Параметр | Значение |
|---|---|
| длина | 11225 мм |
| ширина | 400 мм |
| высота | 400 мм |
| масса | 4500 кг |
| нормативный документ | Серия 1.420-35.95 |
Цена:
Рассчитать стоимостьК 14 Колонны Серия 1.420-35.95.
| Параметр | Значение |
|---|---|
| длина | 11225 мм |
| ширина | 400 мм |
| высота | 400 мм |
| масса | 4500 кг |
| нормативный документ | Серия 1.420-35.95 |
К 14 Колонны Серия 1.420-35.95.
