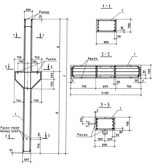
К 96

Чертеж изделия:
Характеристики изделия:
ПараметрЗначение
длина10650 мм
ширина400 мм
высота2100 мм
масса8300 кг
нормативный документСерия 1.424.1-5

К 96  Колонны средние Серия 1.424.1-5.