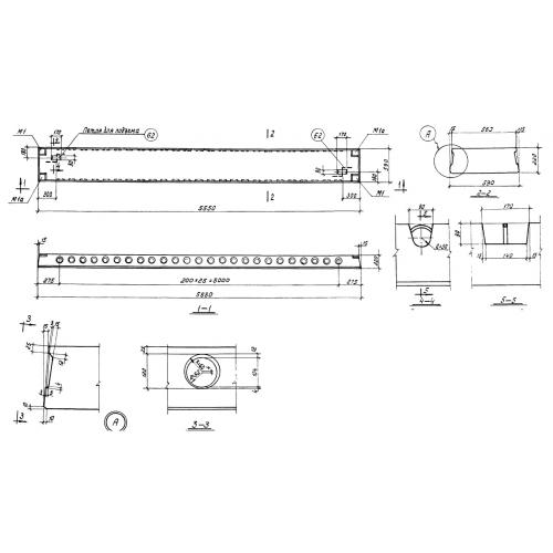
П 9

Чертеж изделия:
Характеристики изделия:
ПараметрЗначение
длина5550 мм
ширина590 мм
высота220 мм
вес1900 кг
серия1.440-1

П 9 Плиты ребристые по серии 1.440-1.