БК 31

Чертеж изделия:
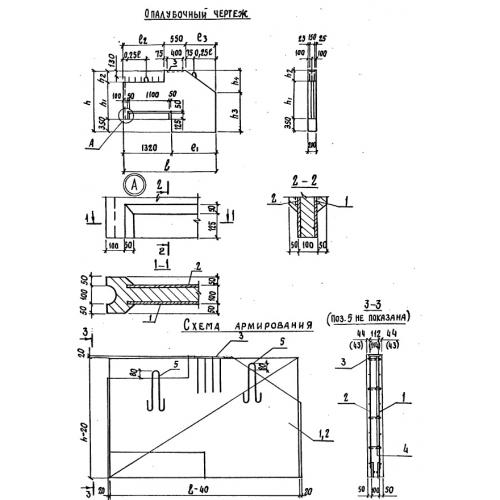
Характеристики изделия:
ПараметрЗначение
длина3050 мм
ширина200 мм
высота1950 мм
вес2300 кг
серия3.503.1-100

БК 31  Блоки крайние шкафной стенки по серии 3.503.1-100.