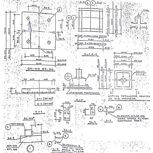
ФР-160

Чертеж изделия:
Характеристики изделия:
ПараметрЗначение
длина1600 мм
ширина1600 мм
высота200 мм
вес1280 кг
серияРМ 2-77

ФР 160 Ростверки по серии РМ 2-77.